Frattini, Via Lorenteggio 157 | Bilocale ristrutturato luminoso e silenzioso
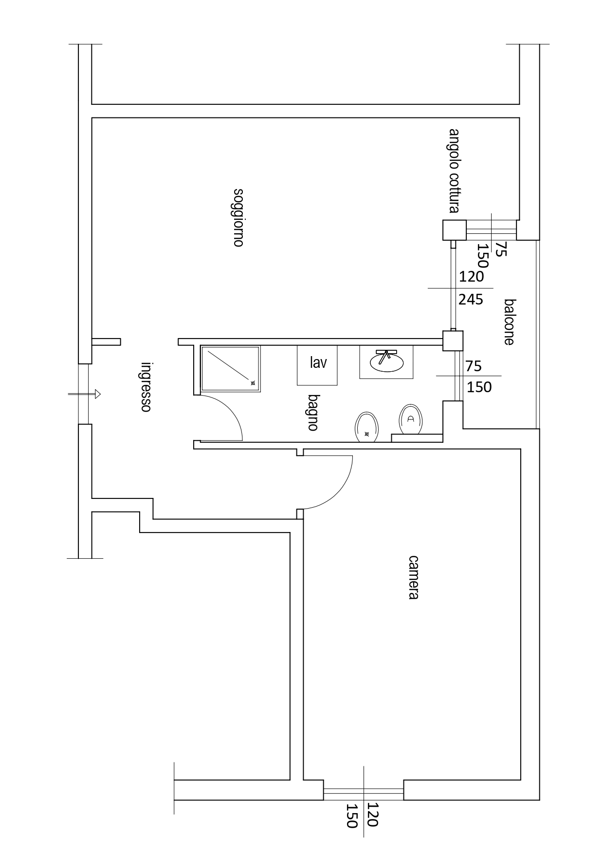
Bilocale completamente ristrutturato, silenzioso e molto luminoso. Perfetto per una coppia o una persona da sola.
L’appartamento è al quarto piano con affaccio interno di un condominio molto curato con portineria tutto il giorno.
E’ appena stato completamente ristrutturato e tutti gli arredi sono nuovi.
Si entra in un disimpegno su cui affacciano il living con cucina a vista e con un ampio balcone, la camera da letto matrimoniale molto spaziosa e il bagno.
Ci sono lavatrice e lavastoviglie, aria condizionata, porta blindata e videocitofono.
Disponibile un solaio.
Libero subito.
L’appartamento si trova a pochi metri dalla nuova linea Blu della metropolitana, vicino anche a molti mezzi di superficie, in una zona in grande evoluzione.
RICHIESTA € 1.150+ € 200 DI SPESE/mese compreso riscaldamento.
PER INFORMAZIONI ED APPUNTAMENTI milano@casabaseimmobiliare.com o chiamateci al 3272737929
APE n. 1514604916025 del 16/10/2025 CLASSE D EP gl, nren 162,49 kWh/m2 anno
Location
Servizi e caratteristiche
- Aria condizionata
- balcone
- doppi vetri
- porta blindata
- portineria
- riscaldamento centralizzato
- soffitta
