Crocetta, Via Marco Polo 24 | appartamento quadrilocale
Prezzo
€. 365.000,00
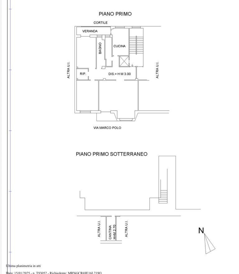
Crocetta, Via Marco Polo 24, stabile signorile in paramano con ascensore e portineria. Appartamento da sistemare con un ottimo potenziale, ampio ingresso corridoio, soggiorno doppio, due camere da letto, cucina abitabile, due bagni con finestra, ripostiglio e ampio balcone verandato.
Doppia aria, balconi da entrambi i lati.
Completa la proprietà una cantina al piano interrato.
Posizione
24, Via Marco Polo, Crocetta, Circoscrizione 1, Torino, Piemonte, 10129, Italia
Metri quadri
Mq 143
Camere da letto
2
Bagni
2
Locali totali
4
Altre camere
N/D
Cucina
abitabile
Box
a parte
Prezzo box
N/D
N/D
Giardino
Ascensore
si
Piano
1
Piani Stabile
6
Finiture Interne
N/D
Condizioni Interne
originali
Spese
N/D
Anno di costruzione
1965
Disponibile dal
N/D
Classe Energetica
E n.20252084230117
Servizi e caratteristiche
- Aria condizionata
- balcone
- cantina
- porta blindata
- portineria
- riscaldamento centralizzato
